

تتميز مضخة إطفاء المركبات منخفضة الضغط CB10/60 بأداء ممتاز، وكفاءة عالية، وهيكل مدمج، وتصميم أنيق، وسهولة في التشغيل، وسهولة في الصيانة. وهي مناسبة لشاحنات إطفاء خزانات المياه المتوسطة والثقيلة، وشاحنات إطفاء الرغوة، وشاحنات إطفاء أبراج المياه، وغيرها.
سعر السوق:
$2800أصل المنتج:
Chinaمهلة:
In stockوزن:
115 KGمضخة الإطفاء:
CB 10/60تدفق المضخة:
60 L/Sضغط العمل:
1.0 Mpaتتميز مضخة إطفاء المركبات منخفضة الضغط CB10/60 بأداء ممتاز، وكفاءة عالية، وهيكل مدمج، وتصميم أنيق، وسهولة في التشغيل، وسهولة في الصيانة. يعتمد هيكل المضخة على تصميم ريشة توجيه، بينما يتضمن الدافع حلقة توازن وفتحة توازن، مما يقلل بشكل كبير من القوى المحورية والشعاعية ويزيد من عمر الخدمة. تتوافق جميع مؤشرات الأداء مع معيار GB6245-2006، وقد اجتاز المنتج اختبار النوع الذي أجراه المركز الوطني لمراقبة جودة واختبار معدات مكافحة الحرائق. مضخة حريق CB10/60 مناسب لشاحنات إطفاء خزانات المياه المتوسطة والثقيلة، وشاحنات إطفاء الرغوة، وشاحنات إطفاء أبراج المياه، وما إلى ذلك.
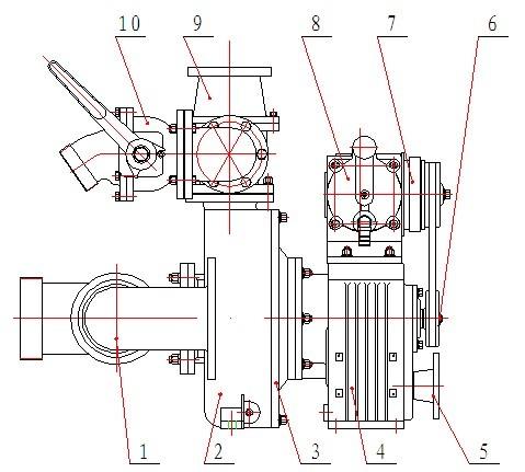
» 1. هيكل مضخة الحريق CB10/60:
|
1. صمام مدخل ثلاثي الاتجاهات؛ 2. صدفة؛ 3. الغطاء الخلفي؛ 4. علبة التروس؛ 5. شفة وصلة العمود؛ 6. عجلة الحزام؛ 7. القابض الكهرومغناطيسي؛ 8. مضخة تمهيد المكبس؛ 9. صمام الضغط الخلفي؛ 10. صمام الكرة المخرج |
» 2. مواصفات شاحنة الإطفاء CB10/60:
|
Model |
Work condition |
Flow rate |
Outlet pressure |
Rated speed |
Power |
Suction depth |
|
(L/S) |
(Mpa) |
(r/min) |
(KW) |
(m) |
||
|
CB10/60 |
1 |
60 |
1 |
3200±50 |
102 |
3 |
|
2 |
42 |
1.3 |
3475±50 |
106 |
3 |
|
|
3 |
30 |
1 |
3130±50 |
73 |
7 |
|
|
| Working condition 1 | Working condition 2 |
» Ⅲ. CB10/60 fire pump component:
[if gte mso 9]>
|
أغراض |
رقم القطعة |
اسم |
|
1 |
GB276-82 |
مجموعة المضخة |
|
2 |
إتش إس بي-000 |
مجموعة مضخة المكبس |
|
3 |
ZHF80-000 |
صمام الضغط الخلفي DN65 |
|
4 |
جي بي 900-88 |
مسمار M10×40 |
|
5 |
GB/T11544-1997 |
حزام مثلث من النوع A620 |
|
6 |
CB10/30-000-001 |
ختم |
|
7 |
جي بي 900-88 |
مسمار M10×40 |
|
8 |
جي بي 95-76 |
حشية مسطحة 10 |
|
9 |
GB93-87 |
حشية الزنبرك 10 |
|
10 |
GB/T6170-2000 |
صمولة سداسية M10 |
|
11 |
جي بي 95-76 |
حشية مسطحة 10 |
|
12 |
GB93-87 |
حشية الزنبرك 10 |
|
13 |
GB/T6170-2000 |
صمولة سداسية M10 |
» Ⅵ. تطبيقات المنتج:
|
|
| مضخة حريق CB10/60 مثبتة على الهيكل | مضخة حريق CB10/60 مثبتة في الخلف |
|
|
| شاحنة إطفاء مزودة بمضخة CB10/60 | اختبار مضخة الحريق CB10/60 |
1. يمكننا التزويد بـ CB10/20، CB10/30، CB10/40، CB10/60، CB10/80، CB10/100،إلخ.
2. يمكننا أن نقدم لك مضخة حريق، نطاق السعر من 1800 دولار إلى 20000 دولار
3. يمكننا أن نقدم لك ضمان لمدة 12 شهرًا.
نحن في POWERSTAR نوفر أيضًا قطع الغيار (الأصلية وOEM والبديلة) لجميع أنواع الشاحنات والمقطورات
مع خصم وجودة عالية لضمان أن شاحنات ومقطورات عملائنا في حالة عمل جيدة.